Billbergia file for $335 million Concord West masterplan

Billbergia is continuing to bolster its apartment development pipeline.
The busy developer, who has a number of projects in Wentworth Point, Rhodes and Chatswood in the planning phase, is set for a $335 million, 3.14-hectare masterplanned community in Concord West.
They acquired the 1 King Street site in 2019, and are planning more than 700 new dwellings on the block near Concord West Station.
The application aligns with the NSW Government’s Transport Oriented Development (TOD) Program, which has seen 39 train stations now subject to rezoning and new planning controls which will encourage the delivery of new housing.
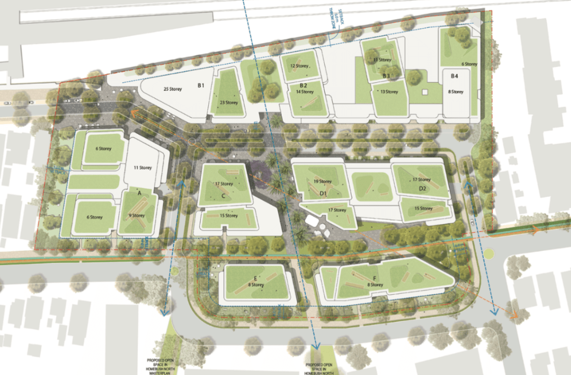
Billbergia’s plan for 1 King Street includes 10 buildings, each one between four and 12 levels. They will deliver a combined total of 698 apartments and 18 townhouses.

Billbergia’s Development Director Rick Graf says the proposed development will facilitate a mix of retail, commercial and residential uses.
“It was a landmark feat to secure a consolidated site of over three hectares, let alone one which offers seamless access into the adjacent Concord West railway station,” Graf said.
“Our vision for Concord West is strongly aligned with the NSW Government’s Transport Oriented Development Program. The redevelopment of this site will provide greater choice in housing, boost local employment, improve connectivity, and meet the needs of current and future residents for years to come."
Around 7,600 sqm of retail floor space would be dedicated to essential retail and food services – including a supermarket, specialty shops and cafes.
The plans allow for a 2,500 sqm green connection and neighbourhood park, proposed to run across the site, increasing its permeability for both pedestrians and cyclists. A new loop road connecting King and George Streets has also been included in the plans.
A new ground-level civic area would activate the site’s public domain, while an existing onsite childcare centre would also be integrated into the new development as part of Billbergia’s masterplan.

As part of the proposal, Billbergia would deliver key local infrastructure, including the new public road connecting George Street and King Street, and/or provide funding towards proposed local precinct intersection upgrades and stormwater upgrades. Billbergia is known for delivering landmark mixed-use precincts, including the national award-winning 11-hectare Wentworth Point Town Centre, which comprises over 3,700 apartments.
The developer recently unveiled plans for the final stage of its Wentworth Point masterplan, which is set to deliver over 900 apartments over two 40-level towers.
The proposal incorporates a waterfront promenade with amphitheatre, restaurants, hospitality, and a major new park in the heart of the town centre. It’s accompanied by $70 million in new community and social infrastructure under a Voluntary Planning Agreement submitted to City of Parramatta Council.
Late last year Billbergia announced plans to deliver a 244-apartment complex in Rhodes, along with a separate proposal for a mixed-use project in Chatswood comprising 251 dwellings over two towers alongside commercial and retail space.
Billbergia has also collaborated with the government and not-for-profit sectors to deliver a combined 1,315 social, affordable and market dwellings in Lidcombe and West Ryde (completed 2023) and Arncliffe (under construction).
Joel Robinson
Joel Robinson is the Editor in Chief at Apartments.com.au, where he leads the editorial team and oversees the country’s most comprehensive news coverage dedicated to the off the plan property market. With more than a decade of experience in residential real estate journalism, Joel brings deep insight into Australia’s evolving development landscape.
He holds a degree in Business Management with a major in Journalism from Leeds Beckett University in the UK, and has developed a particular expertise in off the plan apartment space. Joel’s editorial lens spans the full lifecycle of a project, from site acquisition and planning approvals through to new launches, construction completions, and final sell-out, delivering trusted, buyer-focused content that supports informed decision-making across the property journey





