Melbourne Metro Station names revealed as Development Plans are released

The names of the five new stations that together form the Melbourne Metro Rail Project have been revealed following an extensive public submission process that attracted over 50,000 suggestions.
Premier Daniel Andrews and Minister for Public Transport Jacinta Allan visited the CBD North work-site to announce the new station names at what will eventually be known as State Library Station.
State Library Station will have an underground connection to Melbourne Central Station's concourse and its primary entry on the corner of LaTrobe and Swanston Streets with the existing buildings on site currently being demolished.

Further south along Swanston Street will be Town Hall Station (previously CBD South) with entries located within City Square, Federation Square and between Young & Jacksons and the Nicholas Building in addition to an underground connection to Flinders Street Station.
The underground station under St Kilda Road will be named Anzac Station with a direct interchange to the tram network and station entries either side of St Kilda Road. The name was chosen to reflect its location adjacent to the Shrine of Remembrance.
Parkville, the new station servicing the Melbourne University Education and hospital and research precinct is the only station which retains its working name.
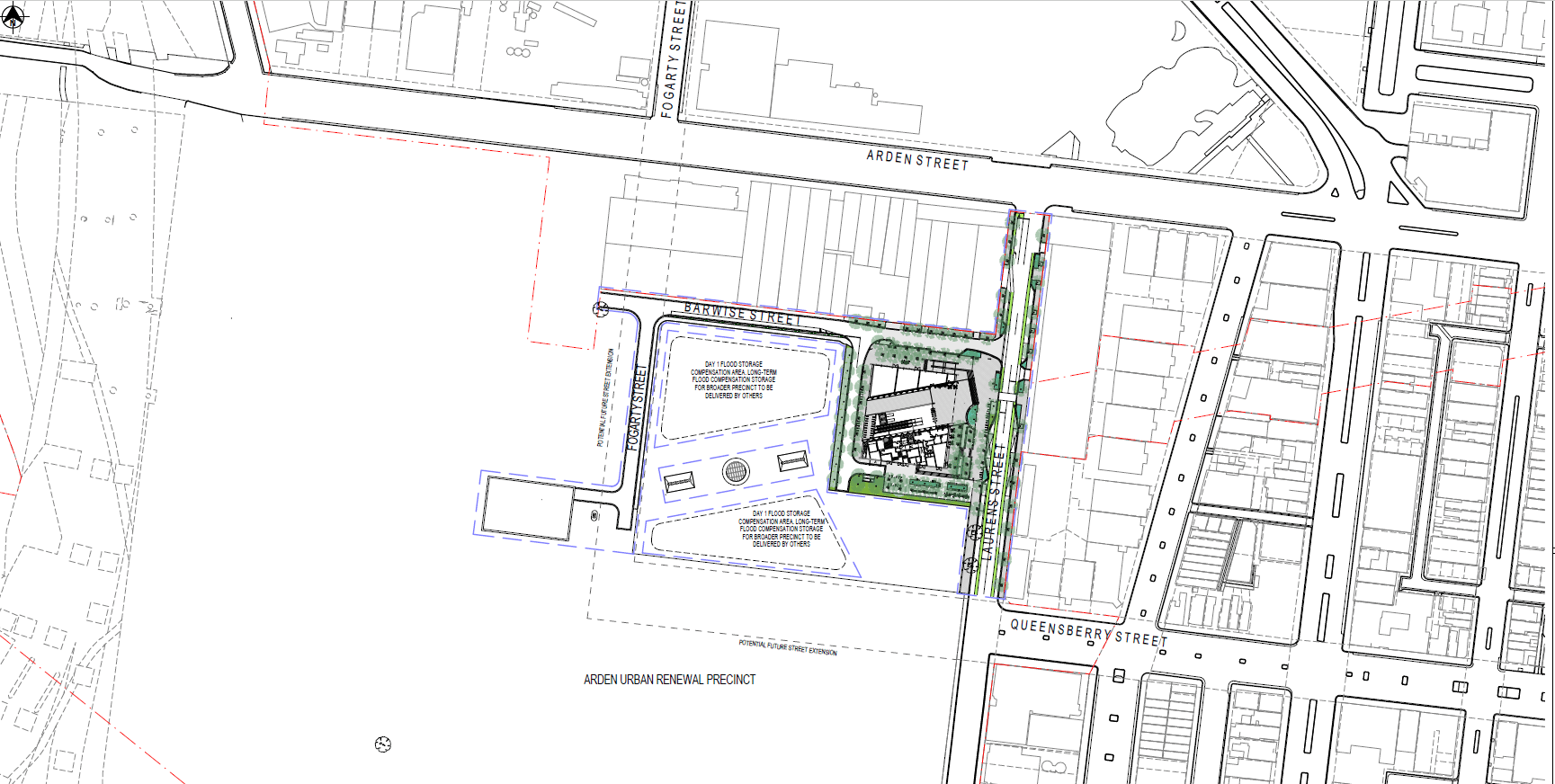
The existing North Melbourne Station will be renamed West Melbourne to better reflect its location which will allow the new station located within the Arden Renewal Precinct to adopt North Melbourne Station name.
The majority of the 50,000 entries for the new station names indicated that Victorians wanted names which reflected the station’s locations although there were the occasional references to The Simpsons and Game of Thrones.
Each new station will adopt world-class urban design principles which will revitalise vital open space above ground for the hundreds of thousands of people who use them each day.
We’re getting the Metro Tunnel done – to run more trains, more often across Melbourne and Victoria, finally giving our state the transport system it deserves. Victoria has embraced this project and the naming process – with more than 50,000 suggestions for what these state-of-the-art stations should be called.
- Premier Daniel Andrews
The Melbourne Metro Rail Authority has also released the development plans for the five stations prepared by Cross Yarra Partnership (CYP) comprising of Lendlease Engineering, John Holland and Capella Capital with designs by HASSELL in conjunction with Rogers Stirk + Harbour and Weston Williamson + Partners.

As part of the process individuals, businesses and the greater community are encouraged to have their say on draft Development Plans and a draft Early Works Plan for the Metro Tunnel Project. Submissions can be made until 5pm Friday 15 December 2017 and the MMRA will be running as series of information sessions at the locations listed below:
- Thursday 30 November, 11am – 2pm, Seasons Botanic Gardens, 348 St Kilda Road, Melbourne
- Thursday 30 November, 5:30pm – 8:30pm, Seasons Botanic Gardens, 348 St Kilda Road, Melbourne
- Monday 4 December, 5:30pm – 8:30pm, Meat Market, 5 Blackwood Street, North Melbourne
- Tuesday 5 December, 11am – 2pm, Melbourne Town Hall, 90-130 Swanston Street, Melbourne
- Tuesday 5 December, 5:30pm – 8:30pm, Melbourne Town Hall, 90-130 Swanston Street, Melbourne
- Saturday 9 December, 11am – 2pm, North Melbourne Football Club, 204-206 Arden Street, North Melbourne
- Tuesday 12 December, 5:30pm – 8:30pm, Melbourne Town Hall, 90-130 Swanston Street, Melbourne
CYP’s designs have incorporated feedback from a range of stakeholders including those identified in the Incorporated Document; the Office of the Victorian Government Architect, City of Melbourne, Heritage Victoria, Transport for Victoria, VicRoads, Public Transport Victoria and Melbourne Water. Additional consultation with community and stakeholders has also occurred as part of the preparation of the Development Plans.
North Melbourne Station

The Arden precinct is to become a new destination and community of Melbourne – a place to work, live and visit. The station will be the catalyst for the urban renewal of this precinct and will be the heart of its economic, social and civic intensity. It will also have a direct influence on the site’s eventual configuration.
North Melbourne Station will set the tone for this important urban renewal project. The Day 1 entrance to the station at Laurens Street and the surrounding public realm will seed the character and benchmark Arden’s identity.
Parkville Station

The metro and public realm have a direct interface with the evolving master plan of University of Melbourne, which is redeveloping some of its buildings and precincts along Grattan Street and Royal Parade as well as developing more intensively to the south of Grattan Street. The metro station will provide a major new entry point for the campus on Grattan Street and change its movement circulation patterns and orientation more north-south.
CYP have reduced station structure encroachment into University land, compared to the reference design, integrating the station entrance within the existing
State Library Station

The public domain associated with the State Library Station will effectively become the base for the next stage of evolution for this fast growing part of the Melbourne CBD. State Library Station will act as a catalyst for the ongoing development of the areas public realm, which is capable of being supported by the growing and energetic population moving into this area.
By encouraging greater amenity and encouraging people to linger longer in the precinct, it is envisaged that this part of the city will change to become more vibrant, where local residents are part of a community. In turn, new activities, businesses, and services will develop to meet growing demands, bringing direct and indirect benefits to the community.
Another significant change occurring within the CBD North precinct is RMIT University’s reconfiguration of its ‘blank buildings’ on Swanston and Franklin streets with the New Academic Street project which was completed in 2017. The aim of this project has been to encourage more ‘outward’ facing buildings that engage with the surrounding streets, including the new Franklin Street promenade.
Town Hall Station

The Town Hall Station precinct is the centre of the transport network containing trams, cars, bicycles and pedestrians being a vibrant cultural and civic heart of Melbourne. There will be future pressures on Flinders Street and Swanston Street (south) which will need to prioritise pedestrian, tram and bicycle movements to allow more efficient and safe movement within this public realm.
The City of Melbourne has various staged plans to manage this transition. The City of Melbourne Walking Plan 2014-2017 will facilitate key actions including addressing pedestrian crowding around train, tram and bus stops, creating attractive, connected walking networks and reducing pedestrian delays at signalised crossings.
The City of Melbourne Bicycle Plan 2016-2020 will provide for more bicycle parking spaces and maintenance stations and improving connections into and out of the city centre. In 2015, the City of Melbourne produced an integrated water cycle management plan for sustainable water management in this catchment.
The station precinct also falls within the Elizabeth Street stormwater catchment area. The project, which will provide more efficient, convenient and enjoyable access the city, will give impetus to these plans.
Anzac Station

The Domain precinct falls within two Melbourne municipalities; the City of Melbourne is the Authority responsible for Domain Road and the City of Port Phillip is the Authority responsible for Albert Road.
Other key land managers are VicRoads, responsible for St Kilda Road, and the Shrine Board of Trustees (for the Shrine of Remembrance Reserve). The 2015 St Kilda Road North Precinct Plan (City of Port Phillip) recommends more intensive development and increased population in the precinct surrounding the proposed station.
Improved public realm and linkages across the Domain precinct resulting from the development of the station would support this recommendation. In addition to increased population, St Kilda Road is subject to change due to shifting transport priorities and long-term considerations such as the need to plan for the replacement of ageing Elm trees.
Major construction on the twin 9km tunnels and five new stations will commence next year once demolition and early works are completed, with the project to be completed by 2026.
View the draft development plans and have your say at: http://metrotunnel.vic.gov.au/planning/have-your-say/development-plans




