Floorplan focus: Uncover the spacious residences at newly complete Moonee Ponds apartments, Rise

Newly complete and ready-to-move-in, Rise is the latest Melbourne development delivered by leading property developer Caydon.
Situated in the highly sought-after Moonee Ponds, the 29-storey tower is located in the heart of a vibrant village and is just moments from transport to take you to Melbourne and beyond.
Comprising 297 one, two and three-bedroom residences, Rise delivers a luxury living experience with spacious floorplans, cutting-edge interiors, floor-to-ceiling windows and numerous amenities.
Designed by Fender Katsalidis, the development features a level 22 conservatory with skybar, landscaped deck and gorgeous city views.
Urban takes a look at three of the featured floorplans available at Rise.
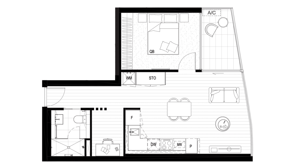
1. Apartment 1001

Apartment 1001 is one of the many floorplan configurations available at Rise, delivering one bedroom, one bathroom and a car space on the tenth floor.
Boasting an internal area of 56sqm, the homes feature natural timber throughout, with a choice of light or dark timber schemes.
The bathroom, designed for Rise by Omvivo, includes a full-width shower, bespoke solid surface basins and clever storage solutions.
Other features in the home include a 6sqm balcony and a built-in study space.
2. Apartment 1003

Also located on the tenth floor is Apartment 1003, a three-bedroom, two-bathroom apartment delivering clever shared spaces and a holistic living experience.
The 124sqm apartment features bespoke includes integrated European appliances and built-in robes.
Other features in the home-sized residence two car spaces, a walk-in pantry and a 13sqm light-filled balcony
The queen-sized master bedroom also includes an ensuite, soft carpeting and walk-in robe.
3. Apartment 2408

Situated on level 24, Apartment 2408 is one of the 62 penthouse-style apartments that occupy the top eight levels of Rise.
Named Skyhomes, these residences are defined by high-end architecture and walls of glass that frame views of Melbourne.
The three-bedroom, two-bathroom apartment includes open-plan kitchen, living and dining and sliding doors out to a large balcony.
Among its other features include wide oak floors, gold metallic rangehood suspended from the ceiling and a free-standing bath in the bathroom.




