Floorplan focus: The last available townhouse configurations at Richmond’s Gramercy Terraces

Only two new terrace homes remain at Lendlease’s latest Richmond development, Gramercy Terraces.
The three and four-bedroom freehold homes are designed to deliver grand floorplans and refined contemporary finishes, inspired by Richmond’s industry heritage.
Set on a leafy tree-lined street, the site is of significant cultural history, formerly home to the Wertheim Piano Factory, Heinz and, until 2010, Channel Nine Studios.
Just four kilometres from the heart of Melbourne, Gramercy delivers convenient living and a variety of local amenity, from shopping, food and the vibrant natural offerings of the neighbourhood.
Urban takes a look at three of the featured floorplans still available at the Richmond project.
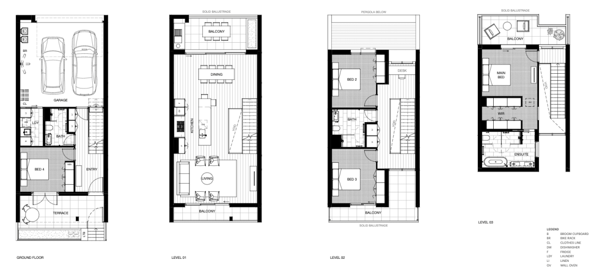
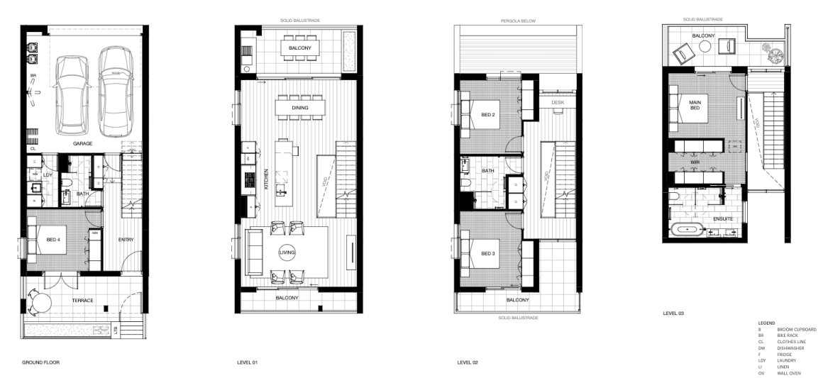
1. 21 Khartoum Street

This four-bedroom, three-bathroom home is amongst the largest still available at the Gramery Terraces development.
Boasting a total area of 343sqm, the four-storey home includes two car spaces, built-in robes, four balconies and a terrace.
The home includes Miele appliances, artisan tapware, Italian stone, tiles, pavers, and a designer Jean Francois D’ light pendant artistically suspended over an expansive stone kitchen island bench.
The master-bedroom sits on its own floor on the top level of the townhome, featuring an ensuite, walk-in robe, north-facing balcony
2. 6A Khartoum Street

The last townhome available with a tranquil backyard and a second living space, 6A Khartoum Street features a unique floorplan.
Designed by Bates Smart, this home features oversized living spaces, three bedrooms and three bathrooms, set over a total area of 275sqm.
An open-plan living, kitchen and dining area welcomes residents home, extending into an alfresco terrace and backyard with in-ground rain water collection.
The home comes with a one-car garage, two balconies and two bedrooms that boast an ensuite and balcony.
3. 11 Khartoum Street
The largest home still available, 11 Khartoum Street boasts four bedrooms and three bathrooms over a total area of 358sqm.

Thoughtfully crafted and inviting, the new home includes a lift and is a sanctuary designed around peaceful outdoor areas that offer a tranquil respite in the hum of the city.
Enhancing the sense of space, it is the only design with three different aspect views thanks to its sought-after corner position.
The home boasts a study nook, walk-in robes, open-plan living, kitchen and dining, and built-in barbeque area on one of the five balconies.





