Inside ALAND's Parramatta apartment development, Paramount on Parkes

Paramount on Parkes, a 39-storey apartment tower in on the fringe of the Parramatta CBD, is the latest development from the respected Sydney apartment developer, ALAND.
ALAND's internal team of architects and designers handled every aspect of the development from top to bottom, and will also deliver the construction of the building, to ensure a high quality apartment tower.
The Australian-owned family company has two decades of experience as a specialist builder and developer delivering contemporary residential projects representing both quality and value.
With a focus on a full-body approach to their developments, Urban has taken a closer look at the floorplans currently on offer at Paramount on Parkes.
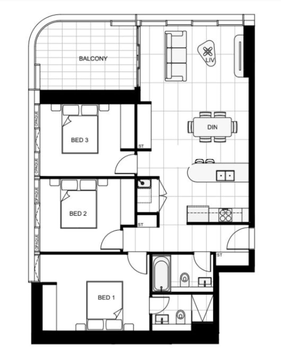
Three Bed | Two Bath | One Car | 107 sqm | from $1,083,000 (pictured below)
The apartments feature floor-to-ceiling windows that frame city and district views and capture maximum natural light.
The covered outdoor terrace or balcony acts as an extension of the living room, opening through glass sliding doors.
The kitchens are fitted with Fisher & Paykel appliances, stone benchtops and glass splashbacks, and gold Grohe tapware.
All the bedrooms are designed with a neutral colour palette, with plush carpets and walk-in or built-in wardrobes.
Residents at Paramount on Parkes will also have access to a number of amenities, from the swimming pool and manicured gardens on the podium level to a rooftop terrace and kids play area.
The design of the striking tower was inspired by the meandering Parramatta River. Entry to the development is through a grand lobby, which features soaring ceilings, marble finishes and statement lighting, reflecting that of a luxury hotel.
Construction is forecast for completion by late-2023.





