And then there were five > Tower 5 Collins Square

Today's article centres on the fifth building in Walker Corporation's Collins Square development at Docklands, otherwise known as site 4E. The 27-storey tower designed by Woods Bagot is the result of a limited design competition and may well inject a further 34,700sqm of commercial office space into the precinct, leaving only V1 from the original Village Docklands scheme as the sole residential building.

Tower 5 would become the final building to be approved as part of the Collins Square Development Plan, and marks a strong departure in form of the previous towers which were far more rectilinear in nature. It does however continue the trend of the Collins Square towers not employing a traditional podium/tower typology, instead being expressed as a sheer volume rising up on the corner.
The development plan previously allowed provision for a 20-storey tower however the increased height is considered appropriate due to its prominent location in the context of Docklands.
Similar to their design for NAB's office building at 700 Bourke Street, Woods Bagot have once again introduced a 'fissure' running the height of the tower, acting to reduce the visual mass and bulk of the tower while providing a point of difference from the other towers at Collins Square. Located on the corner of McCrae Street and Batmans Hill drive, Tower 5 provides a visual marker and entry into Collins Square from the south.
Building 5 in particular requires special attention as the branding, marketing (Collins Square) and site constraints means that as the 5th building on the site, it is isolated.
While it will have a presence from the South and visible from Wurundjeri Way the connection to Collins Square will be lost unless an icon or series of markers are established to promote movement and identification to this building.
Woods Bagot
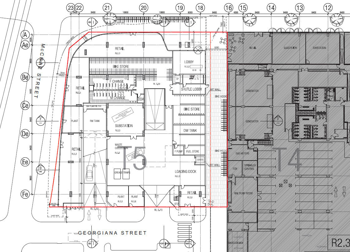
The ground floor sees a wrap of four retail tenancies to Batman's Hill Drive and McCrae Street with the lobby located to the north-west corner off Batman's Hill Drive. A fifth retail tenancy on Walker Laneway and Georgiana Street takes the total retail area to 472sqm. End-of-trip facilities and ancillary plant and service program are located beyond with vehicular access provided from Georgiana Street.

An art wall is proposed Walker Laneway which will separate Tower's 5 & 4 and provide a pedestrian connection from Batman's Hill Drive through to Brentani Way - this is illustrated below:

Experience
The external architectural expression from Building 1 and 2 has been used internally into the “street” and creates a sober backdrop to the internal retail space which provides colour and movement. The retailers in the deeper sections of the ground floor podium will expect way finding icons to draw customers to their tenancies or investors risk these spaces becoming vacant.
Our strategy is to link the lower level and upper level lobbies, to create a contiguous pedestrian experience. The termination of the main axis from Collins St is a strong architectural gesture, linking the roof of the pedestrian spaces to the external envelope of Tower 5. The dynamic surface of the roof twists down to form the façade of the podium, which then rises up to become the façade and form of Tower 5.
The notion of a signature building facing Flinders Street that has a Collins Street address requires an idea that is evident and simple. Our design proposal uses a strong visual connection and new pedestrian access, seamlessly connecting Tower 5 to the main entry on Collins Street.
Woods Bagot

Tower 5 is generally supported by the Future Committee (Planning) so approval from DTPLI seems like a mere formality. Construction will commence upon pre-commitment from an anchor tenant as is generally the case.
Project details
- Number of Floors: 27
- Height: 111m to top of plant
- GFA / NLA: 67,970 / 34,700sqm
- Car Spaces: 242 spaces
- Bicycle Spaces: 154 (118 employee and 36 visitor)
- Developer: Walker Corporation
- Architect: Woods Bagot
- Planning: Urbis




