Victoria One - 452 Elizabeth Street
Victoria One, at 452 Elizabeth represents Golden Age Group's third foray into the Melbourne apartment market. Designed by Elenberg Fraser, the 75-storey development is set to join a growing number of high-rise developments beyond 170 metres in height through the northern end of the CBD, which are illustrated in the images below.
These include ICD Property's Eq Tower, 450 Elizabeth Street, Mammoth Empire's 398 Elizabeth Street, and Brady Group's Vision Tower with the twisting form of 450 depicted at 202 metres, although it's uncertain whether it has increased to 218 metres in height. Should these all proceed, they will greatly impact the northern entry into the city although that's an article for another day perhaps.



For now though let's focus on the subject of today's article - the 241 metre Victoria One. First announced during November last year, Jeffrey Xu's behemoth would become the tallest residential tower within the traditional Hoddle Grid.
Anchoring the Elizabeth/Franklin corner, the tower would provide a gateway partner to another Elenberg Fraser designed tower at 450 Elizabeth Street. Victoria One as it has been dubbed intents to replace the current single and two storey buildings housing a Drummond Golf outlet, a site which has previously seen an Architects EAT concept for a 32-storey Tetris-inspired building simply known as Drummond Apartments.

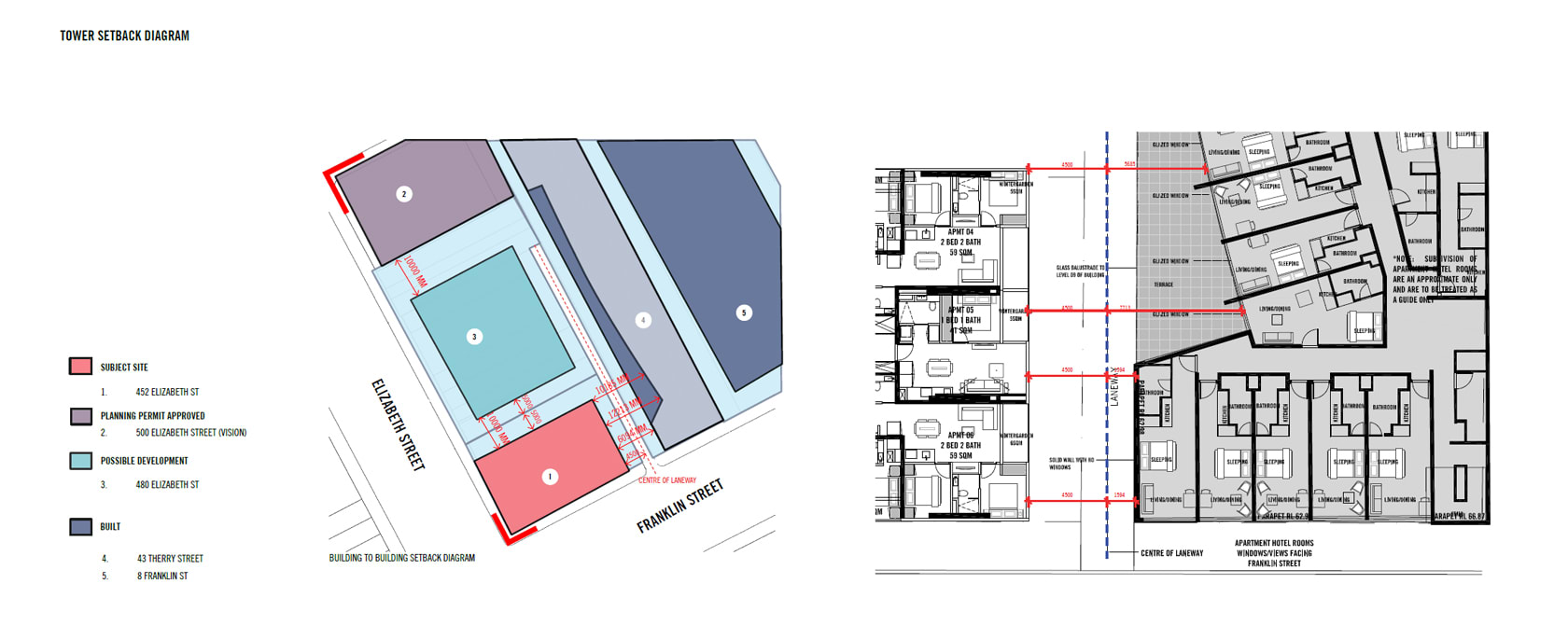
Should it gain approval the proposed development would boast 622 apartments, (a positively low) 163 parking spaces, the capacity to store 263 bicycles with retail applied to ground and first floors. A wrap of apartments conceals the parking levels along the western and southern frontages whilst residential amenities are distributed throughout the building, located on levels 09, 44 and 64.
Presenting as a strong vertical element the development employs a tower-podium typology of sorts which a shadowline visually separating tower and podium, with no setbacks to the south or east due to the site's small footprint of 937 square metres. Minor setbacks of 5m to the common boundary to the north and 4.5m to the centre of the laneway to the east have been designed in.

The tower's facade is a formal representation of Victoria's 'Garden State' identity drawing upon elements of Victoria's landscape such as gardens and waterfalls. The fluid transition of the silver fin elements which cascade down the face of the tower, contract, expand and peel away where communal facilities are located, allowing for glimpses from the outside world of the coloured green glazing behind.
A departure from Elenberg Frasers's typical and successful bronze facade formula, the green facade is reminiscent of the dramatic unfolding when passing through Victoria's rainforest environments. The green gradually fades into a silver towards the tower's apex as landscape meets sky.
The podium heavily features vegetation as a way of softening the building's presence to the street and concealing the car parking along the eastern facade by way of the introduction of shallow angled planter boxes breaking up the otherwise precast concrete.

Overall the design is another solid addition to Elenberg Fraser's growing portfolio of high-rises, provoking visual metaphors of a vertical garden oasis in the midst of an otherwise concrete jungle. Sporting a rippling facade 452 Elizabeth street not only provides visual interest but goes some way to alleviating the effects of wind on the pedestrian environment below.
With the recent approvals of Eq. Tower at 127-141 A'beckett Street and 398 Elizabeth Street and 452 Elizabeth Street likely not far behind, the north end of Melbourne's CBD is beginning to present as the counterpoint to Southbank's growing high-rise cluster.
According the Golden Age's website, Victoria One is expected to have its public sales launch during 2014.
Project team
- Developer: Golden Age Development Group
- Architect: Elenberg Fraser
- Project Manager: Sinclair Brook
- Town Planner: Urbis
- Traffic Consultant: Ratio Consultants
- Waste Management Consultant: Leigh Design
- Landscape Consultant: Oculus
- Building Surveyor: PLP Building Surveyors
- ESD Consultant: Ark Resources
- Structural & Civil Engineer: Robert Bird Group
- Services Engineer: Murchie Consulting
- Land Surveyor: Bosco Jonson
- Quantity Surveyor: WT Partnership
- Wind Engineer: MEL Consultants
- Fire Engineer: AECOM Fire Engineers




