Pakenham townhouse development Altius offering buyers a number of floorplans

Nestled in Pakenham, Altius is a boutique community only minutes from the township, providing a calm and peaceful retreat for first home buyers.
Developed by Creation Homes, Altius is located amongst an enviable mix of recreation, shopping, dining and entertainment.
Pakenham provides a fresh start to new residents, with amenities including the historically significant Winjeel’s trail, the local Bunyip State Park, and the bustling local markets that feature fresh produce, unique artwork and craftware.
The heart of the Dandenong Ranges is just a 40-minute drive away, with cafes, antique shops, wineries and an abundance of bike and walking tracks.
Boasting a collection of 33 residences in three and four-bedroom configurations, Altius features lots ranging in size from 322sqm to 608sqm.
“Everything you need for comfortable living is at your fingertips”, the project marketing reads, with privacy, community and a sense of peace and tranquillity at the forefront the project’s design.
First home buyers and growing families alike have plenty of choice with a great range of house and land packages offering an affordable contemporary home design.
The developers also require just a 10 per cent deposit until the completion of the home.
Urban takes a look at three configurations on offer at Altius.
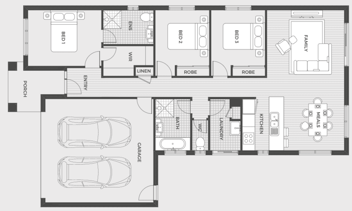
1. Coventry 165

Available at Lot 28 of the Altius collection, Coventry 165 is a single-storey detached home.
Featuring three bedrooms, two bathrooms and a laundry, this spacious layout lies on a 475sqm lot with an internal area of 167.55sqm.
Homebuyers can choose between four façade options - Callista, Classic, Coastal or Plantation - to bring a unique style to their property.
The home is listed for $585,640 and includes a walk-in robe in the main bedroom, open-plan living, dining and kitchen and a two-car garage.
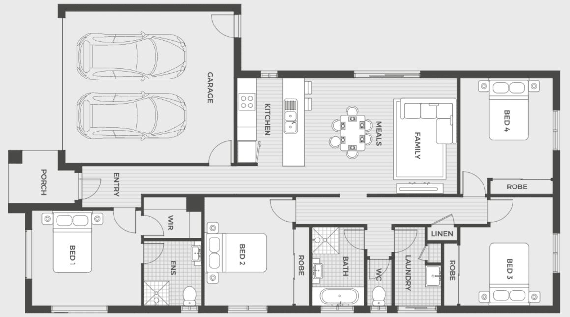
2. Wynyard 181

This large four-bedroom, two-bathroom property in Pakenham is ideal for family living.
Sitting on a 532sqm lot, Wynyard 181 is another single-storey home at Altius that offers four façade options, a master-bedroom with ensuite and walk-in robe, and a two-car garage.
Like all homes at the Cardinia Estate, Wynyard 181 comes finished with premium inclusions, including flooring, stainless steel appliances, LED downlights and a six-star energy rating.
With an internal area of 183.33sqm, the spacious configuration at Lot 13 is available for families or investors at an affordable price of $612,640.
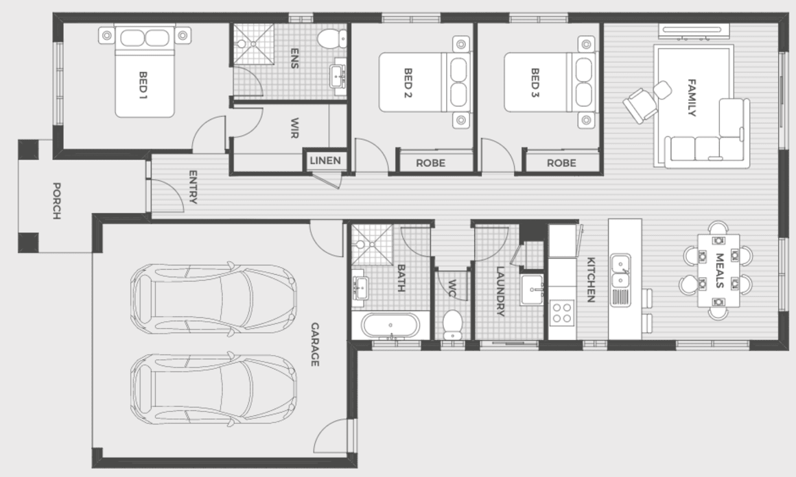
3. Gladstone 200

As the largest configuration still available at Altius, Gladstone 200 provides the necessary room for entertaining family and friends.
The development features an internal area of 202.8sqm and sits on a 547sqm lot, which includes site works, front and rear landscaping, driveway and fencing.
Located at Lot 30, the four-bedroom, two-bathroom home includes a laundry, alfresco dining area, open-plan living kitchen and dining, a study and two-car garage.
The full turn-key home is listed for $631,640, and similarly allows residents the choice between four façade options.




