Landream & V-Leader obtain approval for exclusive five-storey development in Brighton

A joint venture between developers Landream & V-Leader has been in the works since 2017 when they obtained the use of event venue, The Brighton International. Their plan to produce 59 high-end apartments at 81 Bay Street was granted approval by the Bayside City Council, which means apartments will be on the market from Spring 2019.
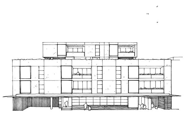
Carr Design (who recently completed multi-residential designs for 131 Residences South Yarra and the interiors of Australia 108) has been engaged to design the structure as well as interiors, while Tract Consultants will be creating the outdoor environment.
The 4,100 sqm site will see a new five-story development take shape later this year, without disruption to any scheduled events up until the 30th June 2019.

Situated in the heart of Brighton, the luxury suites will feature stunning bay and city views, a wine cellar, multi-level basement car park, communal lounge, corporate meeting rooms, private dining facilities and a rooftop entertaining area. The development will also be adding to Brighton’s dining scene with a new cafe planned to open on Bay Street.
“Brighton has long been a sought after location, holding such a rich heritage in the local Bayside community. 81 Bay Street will become an exclusive club only for a fortunate few offering an international level of design and liveability.”
- Henry Burbury, CBRE Director of Residential Projects Victoria.
Landream recently sold-out Opera Residences at $532 million which is currently under construction. It is also developing the Residences at Mandarin Oriental at 600 Collins Street, designed by Zaha Hadid Architects and Plus Architecture, which is scheduled to open in 2023.
Meanwhile, V-Leader’s $50 million Prahran development, No. 6 Sydney Street (designed by Wood Marsh) will be launched to the market via Jellis Craig soon.





