Iris Land pushes on with Stage Two of East End Newcastle

East End Newcastle's developer Iris Capital has pushed through with significant changes to the sprawling development that will eventually account for multiple city blocks.
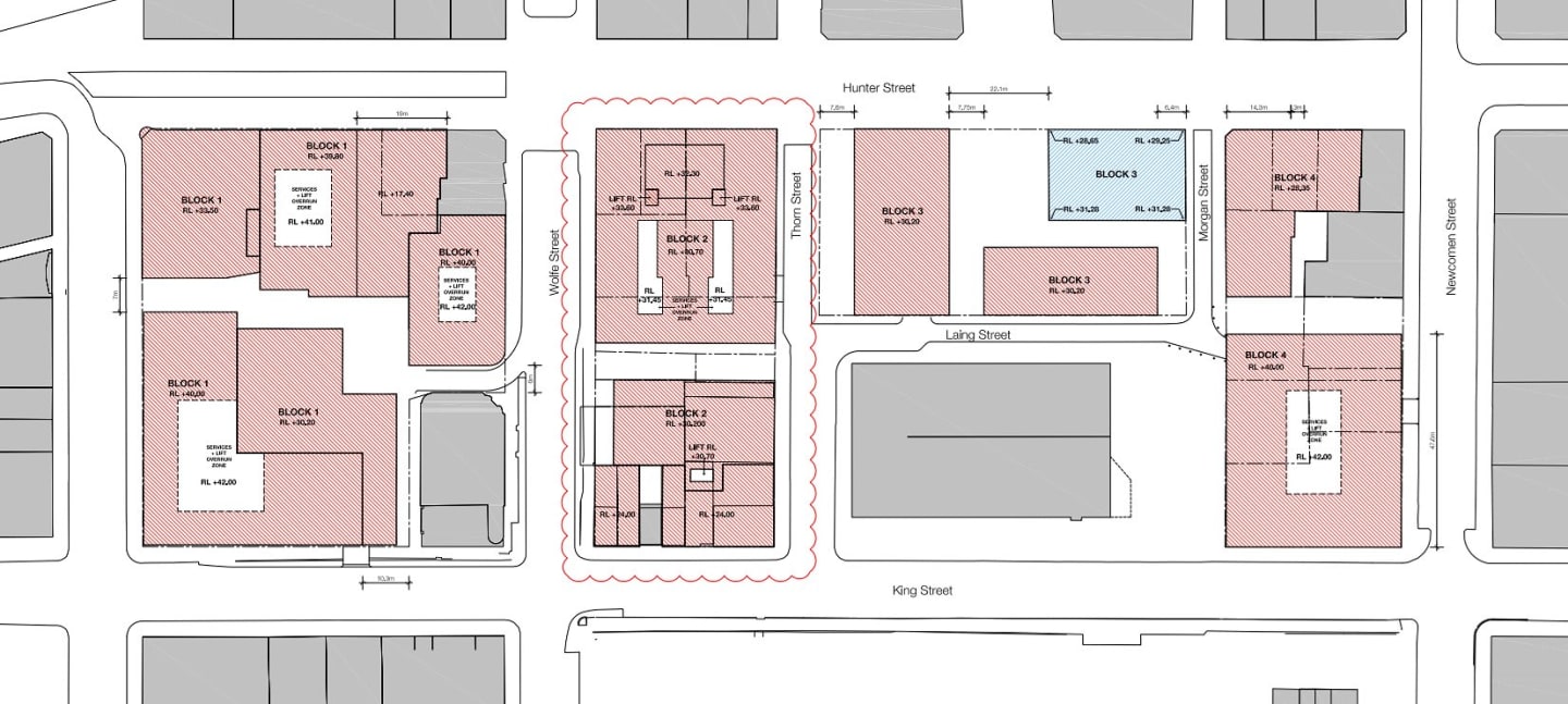
Chief among the planning manoeuvres was the lodgement of Stage Two with Newcastle City Council during May. Under its East End Stage 2 Pty Ltd subsidiary, Iris Capital intends to realise 129 apartments, retail and commercial spaces within the $50 million development application.
CKDS Architecture has conceived the most recent stage, working with fellow design practice SJB in the process.

Stage Two's built form encompasses 13,695 square metres and includes as many as nine retail tenancies spanning 1,500 square metres. Apartments and retails spaces aside, Stage Two also features a green internal courtyard and north-south laneway that divides the built form into two separate volumes.
CKDS Architecture's take on Stage Two reads as follows:
The proposed Newcastle East End Stage 2 development carefully navigates the varied conditions of the site through sensitive additions above and between existing heritage buildings.
Together with the reinstatement and upgrade of the finer grain buildings that define the King Street frontage, the proposal considers the historical layering as well as the future aspiration of the East End redevelopment. Multiple design massing options were considered to arrive at the most appropriate built form.
The final proposal combines the site topography, future character as well as the retention of existing buildings. Existing buildings deemed significant are to be restored, celebrated and maintained; ensuring the heritage layering across the site is preserved.
Meanwhile in unison with Stage Two's lodgement, Iris Capital has also lodged a Modification Application for the overall development which is bound by Hunter, King, Perkins and Newcomen Streets.
A modest increase in overall gross floor area would see 63,116 square metres delivered in total, whilst a reduction in commercial and corresponding increase in retail spaces are also on the agenda. The bulk of the additional floor area has been directed toward Stage Two.

Iris Capital's move on Stage Two follows on from East End Newcastle's initial apartment release which occurred in the last quarter of 2017.
Stage One of four consisted of 155 apartments on a site bound by Hunter, Wolfe, King and Perkins Streets; it is the largest of the four development parcels. The initial stage consisted of apartments only, with its construction expected to be complete by mid-2020.
The overall project value is slated at $750 million and upon completion will include substantial retail offerings plus multiple publicly accessible spaces throughout the precinct.





