Carr's Hoddle Street Development finds favour with Council

The City of Melbourne's Future (Planning) Committee this week resolved to issue conditional approval for a 10-storey building at 1071-1081 Hoddle Street in East Melbourne. The building would rise to a height of 31.54m and accommodate 26 apartments on a triangular shaped site with a total area of 311 sqm.
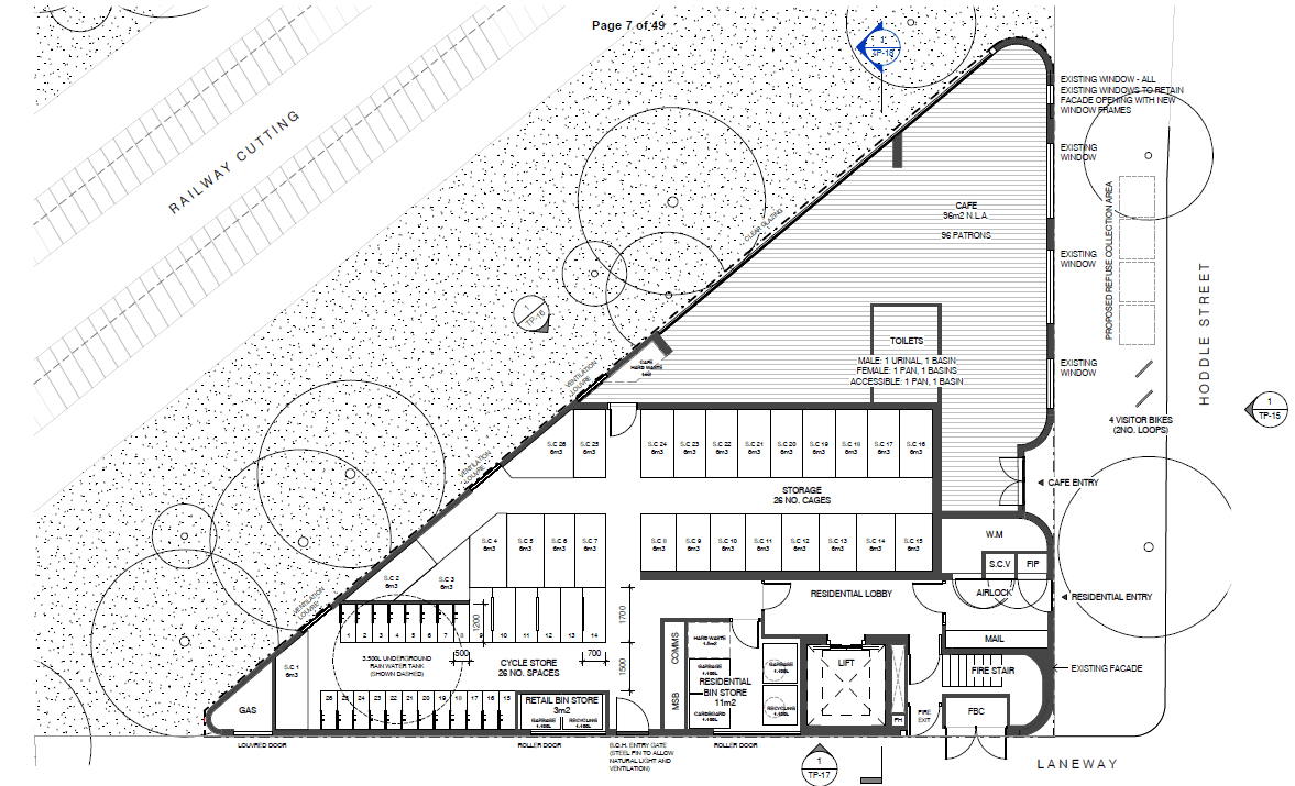
The railway cutting for the Hurstbridge and South Morang lines abuts the rear of the site and a council lane stretches along the southern boundary of the site. The existing property on site is known as ‘Ascot Private Lodge’ and was previously used as a boarding house.
The development will retain the façade of the 'Ascot' which is an ungraded building, with a café slated for the ground floor, but no car parking will be provided due to the location and site constraints.
Additionally the development will breach the 24m height limit outlined in DDO21 which applies to the site by 7m but this is supported by Council as ".... the proposal meets the design objectives by not having a direct impact upon Wellington Parade, Fitzroy Gardens and Yarra Park and respecting the scale and significance of heritage buildings in the vicinity of the site."

One of the few sticking points for the City of Melbourne and one they are seeking to address via a condition on the permit is further resolution to the new development's facade.
Despite the minor projection in height above the preferred 24m datum and bold massing profile of the proposal, the sophisticated architectural response warrants urban design support. The demonstrated level of design quality within the application package are befitting both of the retained heritage base and highly exposed site to the residential hinterland to the north and Hoddle Street to the east. Further, we are confident specifically in the demonstrated ability of the project architects from our knowledge of previous work.
The design of the addition is considered appropriate, subject to conditions to further refine the façade design to integrate the development into the retained portion of the building. Other detailed matters can be addressed via recommended permit conditions.
- City of Melbourne Future (Planning) Committee Report, 15 August 2015
To that end, Carr proposes the use of a combination of materials and finishes for the new build including metal cladding (charcoal), precast concrete, steel framed windows, balustrades and fins (charcoal) and clear glazing. A number of variations of how this palette might be applied to the same building form with subtle distinction is indicated below.

The design response seeks to distinguish the new built form from the existing Ascot lodge acting as a contrasting element to the cream brick facade rather than trying to mimic. The concrete horizontal spandrel bands of the balconies wrap the building and are a cue to the Art Deco elements of the existing building's facade.
The building's height and mass will provide a strong anchor to the corner site and a focal point on the skyline. While the final composition and facade articulation is still to be resolved, it's expected it will largely be in a similar vein to the endorsed scheme.
1071-1081 Hoddle Street in Brief
- Applicant: Carson Ascot Pty Ltd
- Architect: Carr Design Group
- Planning: Contour
- Partial demolition of existing building with the retention of part of the façade to Hoddle Street
- Construction of a 10 storey mixed use development including a food and drink premises (café), 26 apartments (12 one-bedroom and 14 two- bedroom) and a communal rooftop terrace
- Building height of approximately 31.5 metres (RL59.9) as measured from the Hoddle Street frontage to the top of the plant room and pergola on the rooftop but excluding the lift overrun
- No setbacks to boundaries
- Ground floor comprises a food and drink premises (café) with trading hours between 7am to 11pm (96 square metres), residential entrance via Hoddle Street;
- 26 bicycle spaces, 26 storage cages, building services and waste storage accessed via Council Lane CL1379
- No car parking spaces or loading bays
- Level 1 to 2 comprises 4 dwellings (three one-bedroom and one two-bedroom)
- Level 3 to 5 comprises 4 dwellings (two one-bedroom and two two-bedroom)
- Level 6 to 8 comprises 2 dwellings (two two-bedroom)
- Rooftop level comprises a terrace with pergola accessed via a lift and plant room




