Take a look: The luxury Deepdene apartment development The Gratis, one of the suburb's best

Nestled in one of Melbourne’s most prestigious and leafy inner-city suburbs, The Gratis delivers twelve unique and considered residences in Deepdene.
The boutique development defines luxury, elegance, and unbridled sophistication, guided by Embrace Architects’ architectural vision.
Each residence places a premium on first-class quality, the finest fittings and fixtures, and uncompromising attention to detail.
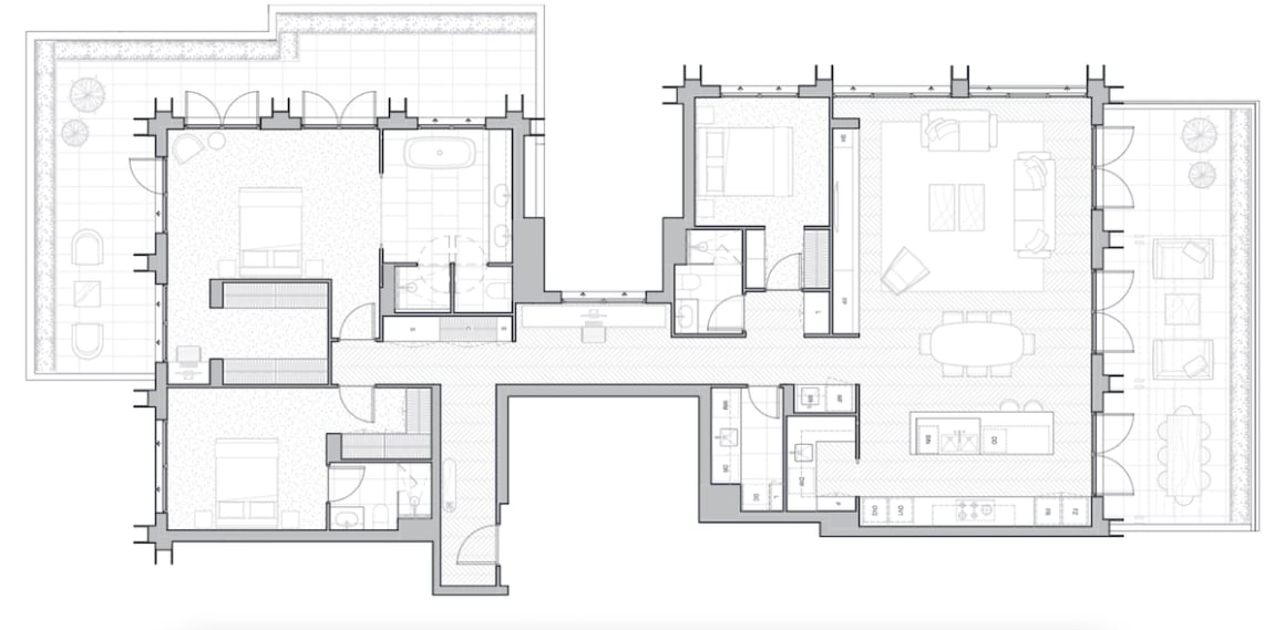
The penthouse apartment, a three-bedroom two-bathroom residence situated on Burke Road boasts a generous living zone complemented by bespoke oak flooring.

“This everyday space will be a genuine pleasure to relax in day and night”, said interior designer, Adele Bates.
Set over a total area of 281sqm, the one-storey apartment features full windows, a separate laundry and two terraces complemented by Jack Merlo landscaping.
The home’s bathrooms and ensuites are fitted with gun metal-finished tapware and include rain showers, freestanding baths, natural marble vanities, and fluted glass screen doors to the shower.
“[It is] the ideal space to refresh and energise”, the project marketing claimed.
Residents will also find immaculate attention to detail in the Gratis’ exterior façade, with metal and natural stone cladding the home.
A unique LED backlit garage door plate is also included within the spacious garage as well as fantastic storage options.
The layout features two study nooks that are built into the design and an east-facing aspect.
Luxury features that are available in the penthouse design include a Molteni&C Gliss Master walk-in closet, designed by Vincent Van Duysen, as well as a Liebherr built-in wine cabinet.
Kitchens are furnished with premium V-Zug appliances, brass accents and a cocktail bar with a Zip Hydrotap upon request.
This luxurious and oversized apartment possesses an uncompromising attitude when it comes to designer residential living.
A modern Escea fireplace and handcrafted tiling act as the centrepieces of the living area, while the large freestanding bathtub is the highlight of the bathroom.
This penthouse residence also includes underfloor heating and, in the master bedroom, under tile heating.
About the developer
Hive Properties pride themselves on their attention to detail and their ability to build and develop luxury residences.
Much like each home at The Gratis is unique, Hive understands that the buyer journey is too. The process for their clients has been tailored to their needs to ensure that they create an inclusive and positive experience.
At Hive, residents deal directly with the design development and construction team so that residents can feel secure in their investment.




