Floorplan focus: There are layouts to match every buyer at Cedar Woods’ St. A townhomes in St Albans

Cedar Woods delivers the first major masterplanned development in the popular community of St Albans with its latest project, St.A.
Designed by DKO Architecture, every home boasts architectural design in a well-serviced location, providing an ideal first home or investment to a range of buyers.
St.A features a six-star energy efficiency rating, as well as spacious layouts, ample storage and open-plan living areas.
There are currently six townhome designs available at the project. Urban takes a look at two of the different floorplans available.
St.A features a six-star energy efficiency rating, as well as spacious layouts, amply storage and open-plan living areas.
According to Cedar Wood, there are currently s townhomes available at the project. Urban takes a look at five of the different floorplans available.
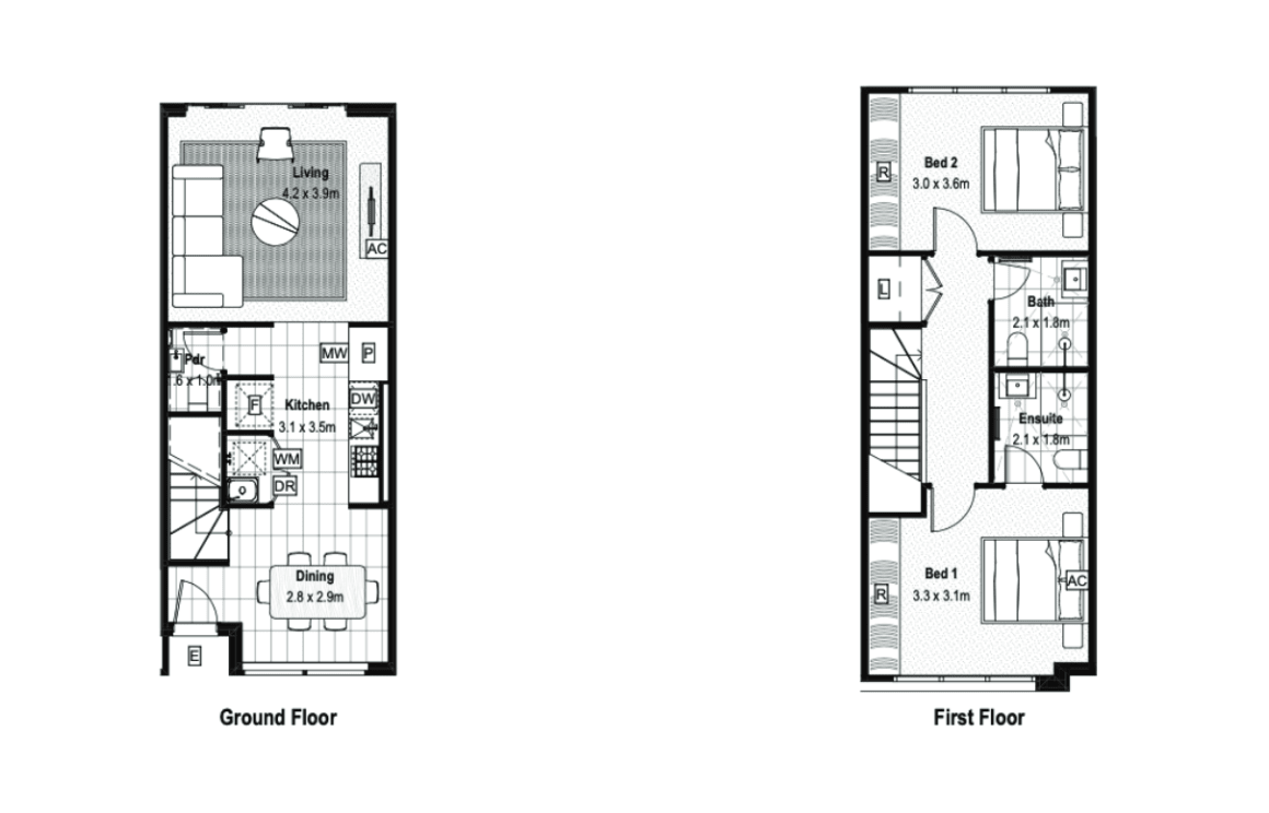
1. Argyle
With two residences available, Argyle design is a superbly appointed two-bedroom, two-bathroom townhome with open-plan living spaces.
Both homes are located on Cameron Lane within the stage 10 release of Cedar Woods’ St.A development.
The turn-key home features include stone kitchen benchtops, stainless steel appliances, a rainwater tank, landscaping and high ceilings.
2. Sapphire IV
The Sapphire IV configuration provides another great family home for mulit-generational families seeking property in St Albans.
Two available homes feature this layout at Lot 904 and Lot 907, with frontage to Higgins Walk.
Boasting three bedrooms, including one at ground level, 3.5 bathrooms, study area and a private courtyard, these light-filled homes are packed with great features including large lounge areas, landscaping and split-system air conditioning.






