Fins and folly > 529-541 Elizabeth Street, Melbourne

City of Melbourne are presented with a good design, verging on a very good design, but one particular aspect of a new planning application involving 529-541 Elizabeth Street is worth questioning. While the Elizabeth Street frontage is transparent and welcoming, the O'Connell Street perspective is anything but.
The proposed development will provide an engaging response to the Elizabeth Street frontage, as well as the O'Connell Street frontage
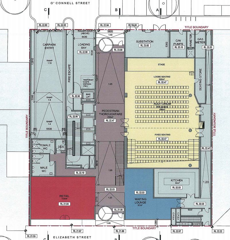
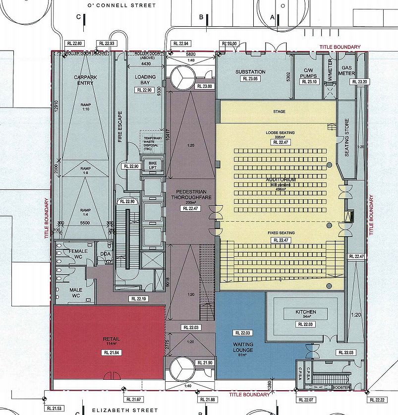
I tend to disagree with this quote from the planning application, as my favoured hobby horse of inactive street frontage rears its head once more with a less than overwhelming scenario depicted below, which fronts O'Connell Street. With services, car park entry and loading fronting O'Connell Street, it is understandable that such a finish has been applied, but highly undesirable at the same time.

This becomes a test for City of Melbourne as much as anything else. More than occasionally they have been known to posture and voice disapproval over tall towers/proposals within the CBD and surrounds, but it is the finer grain public experience that should be paramount and it will be fascinating to see if the council request changes in any form to O'Connell Street's frontage.
Perhaps a static glass-walled art display - similar to the Tacoma Museum of Glass - would be a simple solution addressing O'Connell Street that highlights the site and site proponent's history. Which brings us to the obligatory details.
529-541 Elizabeth Street is proposed to be the new headquarters for the Australian Nursing and Midwifery Federation (ANMF). Designed by Crone Partners, the 46.5 metre tower falls within the City North Precinct and provides ten levels of mixed-use activities. Externally the tower element to both frontages features vertical fins that form a cascading feature which funnels down to the respective entrances.

Internally the building will have office space totalling 7,314 square metres with the three upper levels reserved for the ANMF and the remaining four tower levels are to be leased externally. The podium carries a variety of uses, ranging from education and training facilities (classrooms, labs, meeting rooms and library) with the ability to cater for 200 students.
Ground floor facilities are divided by a pedestrian passage running from Elizabeth to O'Connell and features a 400 seat auditorium which is available to both ANMF and external groups. A retail space of 114 square metres fronts Elizabeth Street while 66 cars and 30 bicycle spaces are accommodated within the basement.

Having recently been submitted, final approval for 529-541 Elizabeth Street is some time away, as tends to be the norm. Apartments.com.au waits with interest to see if the O'Connell Street frontage and overall design proceeds unfettered.
- Context and Design Report and Architectural Plans: Crone Partners
- Transport Impact Assessment: GTA Consultants
- Environmental Wind Assessment: Mel Consultants
- Environmentally Sustainable Design: Crone Partners
- Waste Management Plan: Wastech Services Pty Ltd
- Heritage Advice: Bryce Raworth




