East Brunswick Village a step closer to reality

A development set to reshape East Brunswick's landscape has taken another step forward in a drawn-out approvals process. Primarily fronting Nicholson Street, East Brunswick Village is a sprawling site which first came to light during 2007 when the then Bridgehead Properties Pty Ltd purchased the site with the expectation of a large-scale urban renewal project.
With a development plan approved during October 2012, only last month has Moreland City Council's Urban Planning Committee convened to consider the merits of detailed plans submitted for approval. Between this period it was reported that developer Banco Group expanded the landholding available for development by purchasing an adjoining 8,700sqm block, in addition to the initial 1.9 hectares available.
East Brunswick Village summary

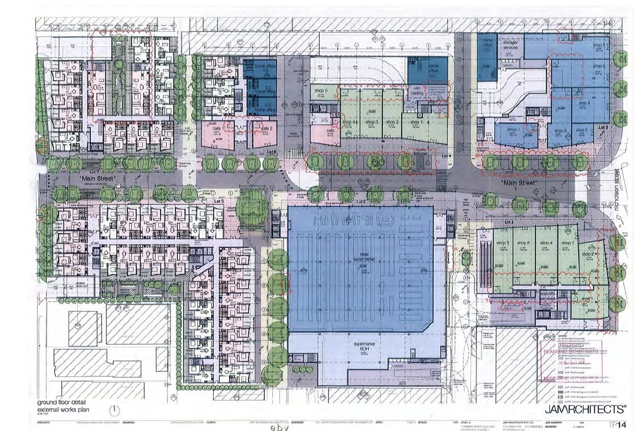
- 21,300 square metre site - frontage to Nicholson Street, John Street and Elm Grove
- Seven buildings - three 5 storey buildings and four 6 storey buildings over 2 basement levels
- 603 dwellings - 241 x 1 bedroom; 360 x 2 bedroom; 2 x 3 bedroom
- 24 hour supermarket - most likely Coles
- 17 retail outlets, 3 food/drink outlets
- 5 home offices
- 748 car parking spaces and 752 bicycle spaces
A staged development

It's proposed that the precinct be delivered in two distinct stages, owing to the sheer size of the development. Stage One would consist of three buildings closest to Nicholson Street, including that containing the full-line supermarket.
Shown to the right in the above schematic, Stage One would also see the delivery of the associated basement levels for 526 vehicles and 614 bicycle bays, plus public realm works including 'Main street', internal roads and pedestrian/cycle connections to Rickard and Gamble Streets. 292 apartments, the aforementioned supermarket, 12 retails outlets and 1 home office are also included.
The balance of the development site is slated for Stage Two, where the four remaining lots would see 311 additional apartments, 5 retail spaces, 4 home offices and additional vehicle/bicycle facilities delivered.
Council Recommendation
That a Planning Permit No. MPS/2013/979 be issued for the staged construction of buildings and works comprising the development of the land for seven buildings (three 5 storey buildings and four 6 storey buildings over 2 basement levels), containing multiple dwellings, a supermarket, shops, food and drink premises and offices, use of the land for dwellings, creation of access to a Road Zone, Category 1, and a reduction of the car parking requirements at 127-137, 139 & part 149 Nicholson Street, Brunswick East.
Urban Planning Committee
As tends to be the case the expected permit is subject to a list of conditions as stipulated by the Urban Planning Committee, but given the current plans adhere to the originally endorsed development plan, final approval for East Brunswick Village seems a formality.
A sustained partnership

JAM Architects have had a long relationship as the preferred architect for Banco Group, with a string of projects spanning the better part of a decade. From a tri-towered scheme for a Kavanagh Street Southbank supersite that never proceeded to a string of inner suburban apartment projects at all stages of the development cycle, the duo have formed a sustained relationship.
Favouring the inner northern suburbs, Banco Group's East Brunswick Village joins Smith&Co. as another large-scale inner-city project yielding hundreds of apartments. 2 Plenty Road was completed a few short years ago while 511-517 Sydney Road and 11-13 Lygon Street are also reported to be Banco Group projects that the architect has delivered, but have yet to proceed.




