A Point of Difference > 97 Franklin Street, Melbourne

Through thoughtful analysis of the existing, under construction, approved and proposed developments, a unique and sensitive development is proposed. In this way the proposal is respectful of its current and future neighbours.
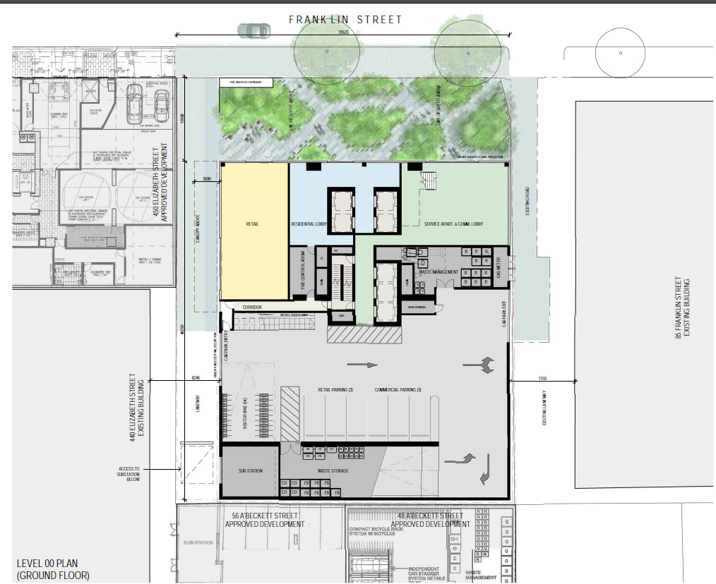
Hassell's planning application for 97 Franklin Street
The quote above demonstrates Hassell's determination to design a mixed-use tower with a "point of difference". The proposed development which first appeared two months ago, would see a two-storey rendered brick building - currently home to Hertz car hire outlet and Eckersley's Art & Craft - demolished and replaced with a 62-storey tower rising to a height of 212.5m.
97 Franklin joins an increasing number of 200m+ giants on the northern tip of the CBD, including Lighthouse next door and Victoria One diagonally opposite.

The proposal marks Artemis Hotel Group's first foray into the Australian market and architects Hassell have certainly delivered a remarkable first impression. Upon initial viewing, the building appears as a series of precariously balanced office blocks but in reality they house 144 serviced apartments, 356 residential apartments and 11 penthouses across the top four floors.
A retail tenancy occupies the north-west corner of the ground floor helping to activate the public realm, whilst a food and beverage dining area occupies level 01 looking out onto Franklin Street. 490sq.m of office space is included as are shared recreational facilities through level 07, bordered by an outdoor landscaped terrace. Resident only facilities splitting a north and south outdoor terrace are found on level 32.
The project caters for 440 bicycle spaces within the basement with only 160 car spaces located in the southern portion of the podium.
Architecture
The tower presents as three large volumes stacked atop one another and rotated 90 degrees: podium, low-rise and high-rise. Each responds to a particular set of parameters and conditions:
The space between the low-rise component and the surrounding developments enables equitable solar access. The north facing high-rise component maximises its solar access and the orientation for the city grid enables morning and evening sunlight onto the southerly face. The rotation gives the low-rise component a greater setbacks and amenity, as well as corridor views. Whilst the high-rise is afforded a large northern city vistas as well as southern CBD views.

As a result the development works on a macro and micro scale by virtue of developing a set of principles for the three volumes which are designed to respond to adjacencies in context, in turn providing a high degree of amenity to apartments and the public domain.
The golden facade consists of a fine, slender grid which responds to the human scale of the rooms, visually reducing the monumental appearance of the three volumes.

Setbacks
The low-rise volume employs the following setbacks from relevant boundaries:
- 5m from Southern Boundary
- 8.2m from Eastern Boundary
- 0m from Franklin Street
- 13.2m from Western Boundary
High-rise setbacks to relevant boundaries:
- 22.2m from Southern Boundary
- 0m from Eastern Boundary
- 10m from Franklin Street
- 5m from Western Boundary
Public Realm
The proposal looks to provide a positive and meaningful contribution to the public realm by way a new north facing "urban forest" at ground level, running along the 40m frontage to Franklin Street. This is achieved by employing a 10m setback to the street with a 5m setback from the western boundary allowing for a new north-south laneway between the site and 450 Elizabeth Street.

I thought I might conclude with this list of objectives which Hassell set out to achieve. I think it's fair to say the design team have done an excellent job in producing an architectural response which certainly provides a "point of difference amongst the typical developer driven projects prevalent in the precinct."
Objectives
The main development objectives are:
- To create a quality, considered architectural response that addresses the varying site conditions.
- To increase the public amenity along Franklin Street, offering a greater urban integration with shared and functional spaces.
- To infuse mixed use principles that will help create an active and engaging street interface.
- To create a landmark development that truly responds to its context, resulting in a equitable development for both the client and the city.
Project Team
- Developer: Artemis Hotel Group
- Project Manager: Equisent
- Architecture: Hassell
- Town Planner: Urbis
- Landscape Architecture: Urbis
- Traffic Consultant: ML Traffic
- ESD Consultant: Ark Resources
- Structural Consultant: Arup
- Wind Assessment Consultant: Vipac
- Waste Management Consultant: Wastech




