The Edge of Tomorrow > 160-186 Lorimer Street, Docklands

Back in sunny February developer Mirvac lodged an application for a 30-storey tower, in part forming the first stage of the Bolte Precinct. Spearheading the westernmost strip of land within Yarra's Edge, the proposed tower at 160-186 Lorimer Street will effectively be the eighth built at Yarra's Edge, number 9 overall, but officially Tower 10 - work that one out!
The 4,000sqm site will have a future interface with the high-density Lorimer Precinct to the south, which forms part of the Fishermans Bend Urban Renewal Area.

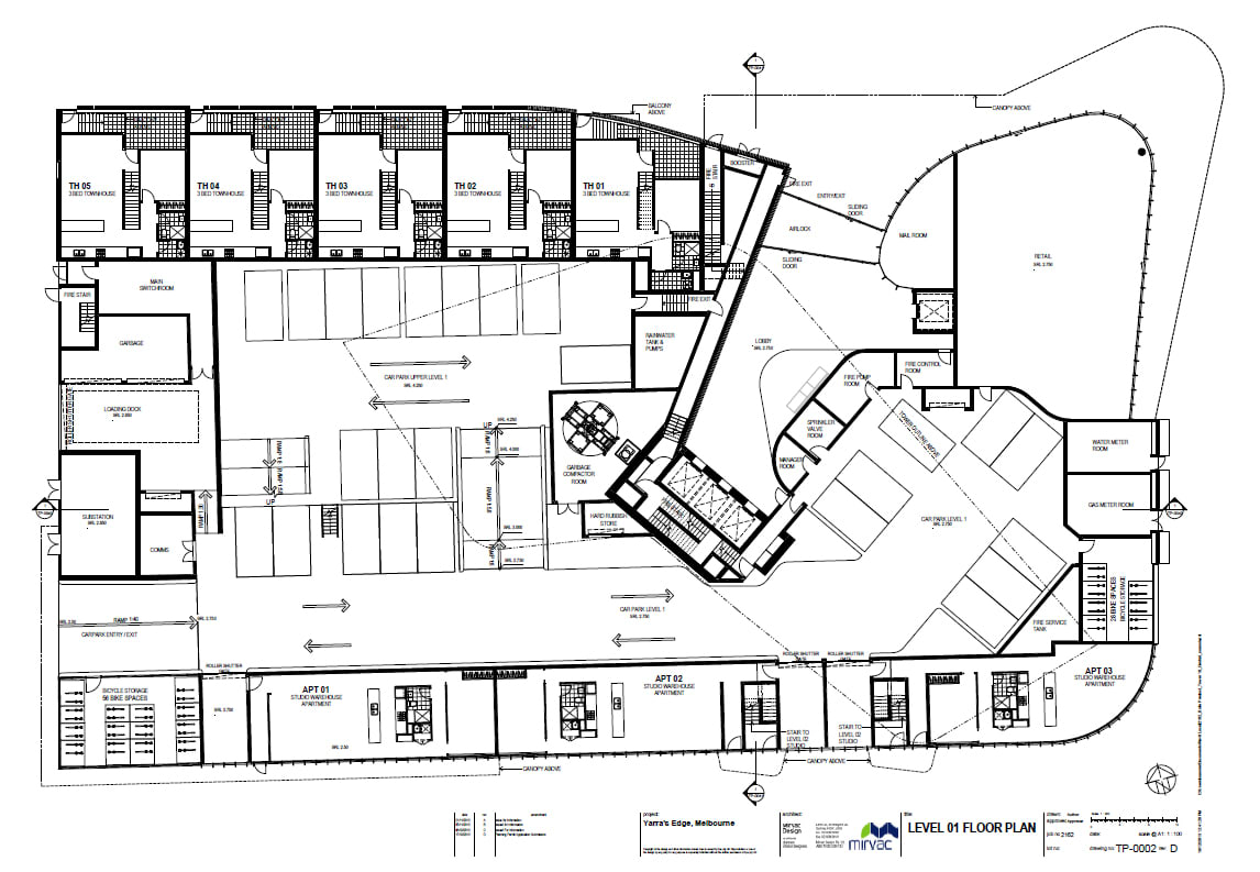
The boot shaped Tower 10 sits atop a 5-storey podium which rises 19.5m for an overall height of 100 metres (RL100.175). As per the planning application, 229 dwellings (none of which rely on borrowed light), 302 parking spaces, 84 bike spaces and 229sqm of retail at ground level are included.
The breakdown of apartments is as follows: 118 one bedroom, 71 two bedroom and 40 three+ bedroom dwellings. Apartments have been introduced to the podium in order to veil an above ground car parking structure, always a welcomed result.
Architecturally the tower has a similar DNA to Yarra Point but with a much more fluid form that responds to prevailing windy conditions. Visually the proposal will form the termination of the Bourke Street axis - a critical vista from within Docklands. Curiously there has been a departure away from procuring designs via competitive entry (Wood Marsh delivering Tower 5 & 6) in favour of in-house design.

History will show that only T5 was built as per Wood Marsh's vision with Mirvac Design taking over design duties for Tower 6 which has since become Array (currently under construction), the feminine counterpart to the masculine T5. My biggest criticism is the predominantly bare concrete podium articulation along Lorimer Street which will become a primary facade once the Lorimer Precinct begins to develop - a somewhat short term approach for a long term structure holding a prominent position.
Design Development Overlay 49 (DDO49) allows for a single or twin tower development rising a maximum height of 130m and it would have been good to see that extra 30m utilised for a proportionally more slender tower in keeping with the heights of T5 & Array. Perhaps the neighbouring Tower 11 will go all the way in the not-too-distant future?
Overall it would appear that the City of Melbourne support the proposal which has undergone a number of design iterations via workshops, so official Ministerial approval is expected soon enough.

Until next time I'll leave you with an image hinting at the height and form of Tower 09 (in the distance above), expected to be the tallest of all within Yarra's Edge.




