Inside Dibcorp's popular Bide apartments in Brisbane's Newstead

Bide is the latest Newstead residential offering by Dibcorp Properties. It comprises 89 spacious one, two and three-bedroom apartments just three kilometres from the CBD.
The design was a collaborative effort by Twohill & James, Lat27 and Wiltshire Stevens Architecture.
Located in the heart of the upmarket riverfront suburb of Newstead, Bide is the latest part of the suburb's transformation to an up-market residential suburb belying its industrial past.
Urban has taken a look at the floorplans on offer as the selection of apartments available starts to dwindle.
- One Bedroom | One Bathroom | One Car | 72 sqm | $485,000+
- Two Bedroom | Two Bathroom | One Car | 99 sqm | $675,000+
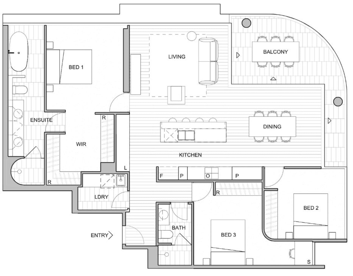
- Three Bedroom | Two Bathroom | Two Car | 121 - 191 sqm | $1,250,000+ (Floorplan pictured below)
Apartments inside feature open-plan living and dining, a balcony space with 270 degree views and a study nook in some apartments for working from home.
Dibcorp has offered residents the opportunity to work hand in hand to tailor the layout and configuration of their apartment. There's plenty of other upgrade options too, from floor and curtains to kitchen fittings and appliances.
Beyond the apartments, Bide residents enjoy 600 sqm of amenity across two levels, including barbeque facilities, private cabanas, landscaped areas and seated space throughout.
"Bide embodies the belief that the spaces we inhabit are essential to a balanced life. It centres around the wellness of the occupier and how the space can compliment their lives," Dibcorp says.
It is slated for completion in early 2023.





