Demolition on Port Phillip Arcade signals start of major works on the new Town Hall station

Demolition of the Port Phillip arcade on Flinders Street has begun which signals the start of major works on the new Town Hall station as part of the Melbourne Metro project.
The Melbourne Metro Rail Authority through its Metro Tunnel facebook page posted the first images of buildings coming down.
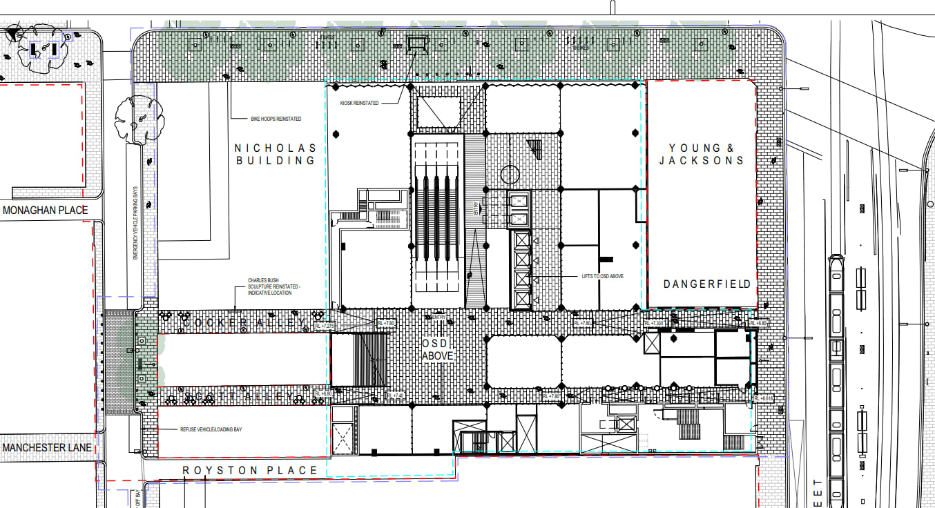
Town Hall, which was earlier referred to as CBD South, will have an underground paid-area connection to Flinders Street station as well as three separate surface entries located at the Collins Street end of City Square, Federation Square and on the site of the now-being-demolished Port Phillip Arcade.
According to the draft development plans for CBD South/Town Hall on the Metro Tunnel website, Cocker Alley and Scott Alley which run south from Flinders Lane will become access points to the new entry to be building on the Port Phillip Arcade site. The main pedestrian entrance to Town Hall station will be from Swanston Street.
The only three buildings fronting Swanston Street & Flinders Street to survive the demolition will be the Nicholas Building, Young & Jacksons and 222-224 Flinders Street which currently has Dangerfield as its tenant.

The Melbourne Metro Rail Authority also posted images of the A'Beckett Street acoustic shed that is nearing completion and will join the already complete Franklin Street shed which allows work to run around the clock whilst minimising noise and dust in the immediate vicinity of the State Library (formerly CBD North) station construction site.
The MMRA describes the construction process that will be deployed at both State Library and Town Hall stations as trinocular caverns.
Three overlapping tunnels will be mined by road headers to create a wide open space that allows the concourse and platforms to be integrated on a single level.
The result is a spacious station cavern with vaulted ceilings, rather than two separate tunnels separated by a cross passage. The total platform width at the CBD stations will be around 19 metres – some of the widest underground metro platforms in the world.
This construction technique is uniquely suited to the CBD's highly variable geological conditions.
Metrotunnel.vic.gov.au
North Melbourne, Parkville and Anzac stations will be built using a cut and cover method.
The Melbourne Metro tunnel will allow the Pakenham/Cranbourne lines to join with the Sunbury line, provide new track capacity through central Melbourne to run higher frequencies that will see positive increases in services across approximately two-thirds of Melbourne's rail network.
The Victorian Government announced in late February the project was already one year ahead of schedule and is set to commence operations by the end of 2025.





