The curious case of 36-40 La Trobe Street

Curious it may seem from afar; a new architect enlisted to deliver a design near identical to the previously approved version conceived by another architect. Yet that's what has occurred at 36-40 La Trobe Street, within the northern reaches of Melbourne's CBD.
Offloaded earlier this year by private investor Konfir Kabo and now held by 36 La Trobe Street Pty Ltd, the site was subject to a Melbourne City Council amendment issue during August this year requesting enhanced amenity features and an exacerbated sculptural form. Enter Buchan Group architects who have ostensibly delivered a visually near identical scheme to that of Elenberg Fraser's original approved design as seen below below left.
So why alter the existing approved design? The revised planning report headed by Urbis contends the amendments will "Provide a greater provision for high quality residential apartments and a stronger emphasis on alternative personal travel. It is not expected that the revised scheme will impact upon the amenity of the adjoining properties, with careful consideration into preventing overlooking opportunities. We also consider the pedestrian environment will be enhanced by the reduction in the vehicle movements to and from the site."

It would seem Buchan Group have maintained the shape and detail of the previous design to expediate the planning process, yet have introduced new amendments in order to enhance both the internal and external environments for the future development. Major changes include deleting four levels of car parking in favour of apartments, although total apartments numbers are reduced from 243 to 224 suggesting larger dwellings have been incorporated into the Buchan scheme.
Further the number of apartments relying on borrowed light has decreased with the implementation of an enhanced facade which "Adopts a curvilinear response carved out along the narrower faces of the north and south facades which is defined by a series of projecting balconies from bottom to top. The entire building form presents a fine sculptural architecture quality." Externally the application now seeks glass balustrades in order to maximise light penetration where previously Elenberg Fraser had incorporated perforated metal.
The eastern aspect maintains a glass facade with metal louvres set at varying angles providing articulation, while the western facade which incorporates a side core is adorned with aluminium clad. It's not too tenuous a link to suggest it holds certain similarities in scale and finish to another Buchan Group design currently under construction, 27 Little Collins Street.

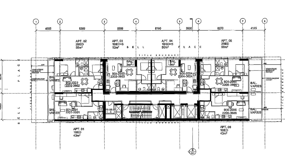
Internally apartments are situated around the side core with shear walls also running along the east-west axis for further building strength. See below the most common floor plan where six apartments per floor are evident, although as many as eight per floor are possible over lower levels.
Vitals see a total of 224 apartments within the amended scheme, the majority of which are either one bedroom or one + study, with 61 two bedroom apartments available and account for 27% of overall dwellings. As mentioned previously four car park levels have been replaced by additional apartments which intend to bring further activity to lower levels, particularly facing Bell Place, although a question of privacy is raised given existing apartments are directly opposite. Buchan Group have addressed this with an adjusted facade over lower levels which sees frosted glass and louvres set at certain angles which negate any overlooking of the apartment complex opposite.
Consequently car parking spaces have decreased from 43 to just 2 while bicycle bays incorporated into the amended design stand at 77; a clear sign that pedal and foot power have been favoured over vehicles. Whilst the initial scheme sought 78 m² of retail space, the amended design calls for a ground level 120 m² cafe with another retail space of 108 m² located on a mezzanine floor with open space overlooking the cafe below; this in turn opens the buildings lower levels to La Trobe Street.

Add the creation a roof top 240 m² communal space and it's evident that the steps taken to address both the private and public amenity of 36-40 La Trobe Street speak to the intent of both developer and council to deliver a high quality result. Without pre-empting Melbourne City Council the previous scheme was approved via a council vote and given the improved nature of the Buchan Group design, one would think the revised scheme is headed for the same outcome.
Should it be realised 36-40 La Trobe Street will add to the growing number of apartment concepts, proposals and approvals found within the area, which include the 36 level 56-58 La Trobe Street which is currently before VCAT and an impending development of the McKenzie Street open air car park.




