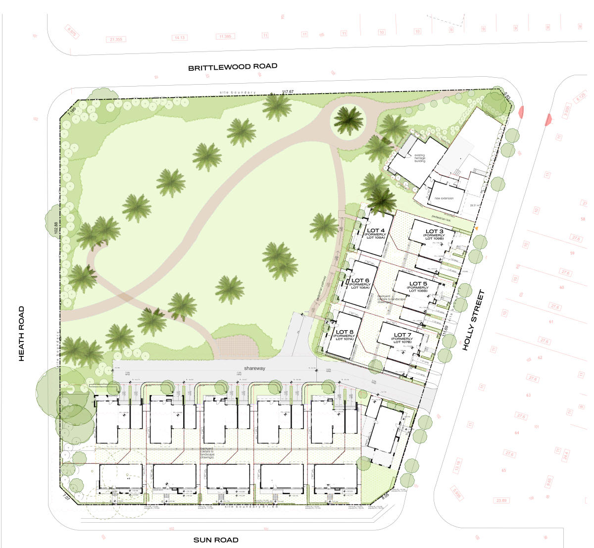
Tegel Park
128 Heath Road, Leppington NSW 2179
Pricing
Starting From $998,000
Bedrooms
4
Residences
18
Estimated Completion Date
Not confirmed
New Apartments for sale in Tegel Park - 128 Heath Road, Leppington
Access the latest brochure, pricing and floorplan details for Tegel Park - 128 Heath Road, Leppington.
4 bedroom apartments from $998,000
Bedrooms:
4
Bathrooms:
3
Carparks:
1
Total area:
225m²
4 bedroom apartments from $1,058,000
Bedrooms:
4
Bathrooms:
3
Carparks:
1
Total area:
256m²
Development information for Tegel Park
Suburb:
Local Government Area:
Camden Council
Project Status:
Pre-construction
Residences:
18
Building Type:
Townhouses
Meet the team behind Tegel Park - 128 Heath Road, Leppington
Location of Tegel Park
You may also like

47 Ingleburn Road, Leppington
47 Ingleburn Road, Leppington NSW 2179
Price
Contact agent

76 Rickard Road, Leppington
76 Rickard Road, Leppington NSW 2179
Price
Contact agent

40 Dickson Road, Leppington
40 Dickson Road, Leppington NSW 2179
Price
Contact agent

1322 Camden Valley Way, Leppington
1322 Camden Valley Way, Leppington NSW 2179
Price
Contact agent






