Pre-auction $2 million deal for Kings Cross 'special' offering

Martindale, a Kings Cross terrace with 10 bedrooms and 11 bathrooms has been sold for $2 million pre-auction by McGrath Estate Agents.
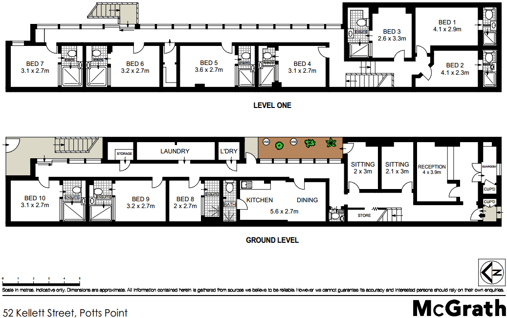
The property with a distinctive dark crimson facade at 52 Kellett Street features an insightful floor plan indicating (pictured below) the purposeful layout.
Click to open in new window:
It featured in the 1999 SMH report by the investigative duo Kate McClymont and Andrew Clennell entitled, "Our Brothel Barons".
At the time it reportedly traded as Classique, a brothel whose advertising once boasted of a speciality in lesbian double acts. It has more recently traded as Studio 52, Star 52, Antonio’s Angels and Secret Desire. The rates have been at around $120 for 30 minutes.
The building, which has been marketed as in Potts Point, was listed previously in 2011, 2012 and 2013 without success.
It last traded at $2.1 million in 2006 when bought by ETC Australias Group Pty Ltd. Its earlier sales were $1.5 million in 2004 and at $1.38 million in 1999.
The premises were for sale, not the business.
More than $1.8 million was being sought.
There is no registered lease, with no rental income advisory given in the McGrath marketing.





